Aradığınız makineyi bulamadınız mı? Bize ulaşın
APT International, Belçika'da 30.000 m²'lik bir mülkiyete ve 3.000 adet makina derhal kullanıma hazır.
Aradığınız makineyi bulamadınız mı? Bize ulaşın

Bedfreesmachines / Beweegbare kolom conventioneel & CNC Huron EXC 20 CNC X:1600 - Y:700 - Z:800 mm

Teknik Bilgiler

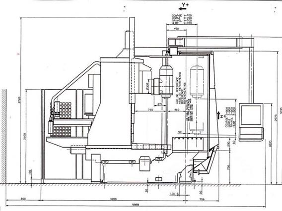
  • Longitudinal travel X-axe1600 mm
  • Crosstravel Y -axe700 mm
  • Travel Z-axe (Height)800 mm
  • Dimensions clamping space - table1850 x 700 mm (360°)
  • Power on spindle25 kW
  • Admission in millingheadspindle (ISO)HSK 63
  • Max speedrange24000 rpm
  • ControlSiemens 840 D
  • Power needed60 kw
  • Weight18000 kg

Ek bilgi

  • CNC-hogesnelheidsfreescentra met automatische freeskop
    5 assen CNC gestuurd
    De Huron EXC 20 CNC-hogesnelheidsfreescentra bestaan uit een machinebed, een vaste tafel, een in X, Y beweegbare slede in een mobiel onderstel, een houder voor de mobiele freeskop in Z en een indexeerbare CNC-freeskop met geïntegreerde spindel.
    3x 380 Volt - 60 kW

  • Tip/Model: EXC 20 CNC X:1600 - Y:700 - Z:800 mm
  • Stok numarası: B.04 5352
  • Kategori: [B] Freze makineleri
  • Alt kategori: [B.04] Bedfreesmachines / Beweegbare kolom conventioneel & CNC
  • Marka: Huron

Stok numarası: B.04 5352

İş makinasının videosunu görüntüle

Posta kutunuzdaki promosyonlar
yeni deneyin Alert Service