Aradığınız makineyi bulamadınız mı? Bize ulaşın
APT International, Belçika'da 30.000 m²'lik bir mülkiyete ve 3.000 adet makina derhal kullanıma hazır.
Aradığınız makineyi bulamadınız mı? Bize ulaşın

Vertikale bewerkingscentra CNC Mazak FJV 35/120

Teknik Bilgiler

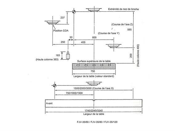
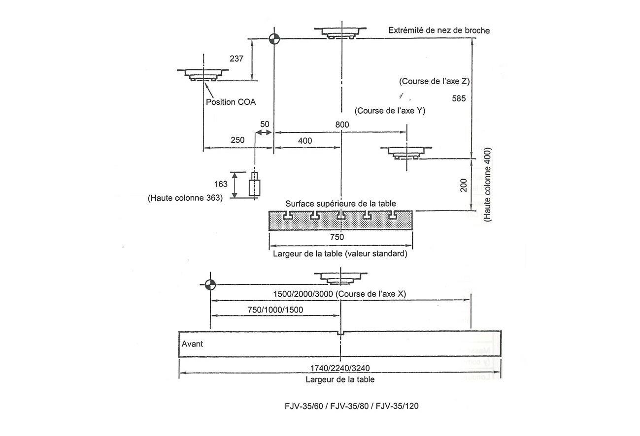
  • Table longitudinal travel (X-axis)3000 mm
  • Cross travel head (Y-axis)800 mm
  • Height travel head (Z-axis)585 mm
  • Table dimensions3240 x 750 mm
  • Max weight on the table3 ton
  • Passage between uprights860 mm
  • Admission in spindle (ISO)ISO 50
  • Power on the spindle30 kW
  • Control (type)Mazatrol 640
  • Toolchangeryes
  • Number of toolholders40 positions
  • Number of rotations (from X to Y rpm)max 6000 rpm
  • Number of pallets (X of Lo x La)(2x) 750 x 3240 mm
  • Length L -- R3274 mm
  • Depth Fw -- Bw8100 mm
  • Height3546 mm
  • Weight19 ton

Ek bilgi

  • Paletchanger 2 masa
    Yüksek basınçlı soğutma 15 bar
    Hurda konveyörü
    Maksimum iş parçası boyutları: 3240 x 880 x 640 mm

  • Tip/Model: FJV 35/120
  • Stok numarası: D.01 16066
  • Kategori: [D] Uygulama merkezi
  • Alt kategori: [D.01] Vertikale bewerkingscentra CNC
  • Marka: Mazak

Stok numarası: D.01 16066

İş makinasının videosunu görüntüle

Posta kutunuzdaki promosyonlar
yeni deneyin Alert Service