Niet de gewenste machine gevonden? Contacteer ons
APT International heeft 30.000 m² stock in België en 3.000 machines direct leverbaar.
Niet de gewenste machine gevonden? Contacteer ons

Brandsnijmachines - Gasbrandsnijmachines & Plasmabrandsnijmachines MicroStep 3D plasma/drilling/tapping/marking

Extra info

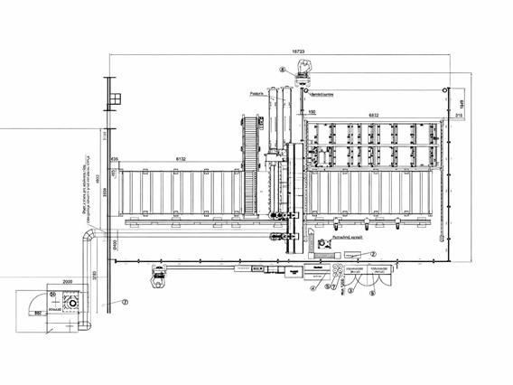
  • Type: DS 6001.20P automatische proceslijn

    De DS geautomatiseerde plaatbewerkingslijn is ontworpen voor zeer efficiënt boren en plasmasnijden, met automatische aanvoer van plaatmateriaal en automatische sortering van onderdelen aan de uitvoer. De machine is specifiek ontworpen voor zware toepassingen in constructiestaal, zoals de productie van uiterst nauwkeurige fittingen, hoekprofielen en eindplaten.


    Plasmasnijden:
    - 3D plasma-afschuinkop voor recht snijden en afschuinen tot +-50°
    - Hypertherm XPR 300
    - maximale plaatafmetingen: 6000 x 2000 mm
    - materiaaldikte: 3 > 45 mm (30 mm afschuining)
    - laserlicht

    Plasma-markering

    Boren en tappen:
    - MG-40 P26 boormachine ISO 40
    - boorbereik: diameter 4 > 40 mm
    - draadsnijden: M4 > M33
    - maximale dikte: 100 mm
    - slag: 400 mm
    - 26 kW op spindel ISO 40
    - maximaal 1829 toeren per minuut
    - automatische gereedschapswisselaar; 8 gereedschapsposities ISO 40
    - Externe en interne gereedschapskoeling

    CNC-besturing:
    iMSNC-systeem voor Windows® 10™ 64-bit PRO met geïntegreerde netwerkkaart en USB-poort

    Automatisch belading: een vacuümzuigsysteem zorgt ervoor dat de platen op de snijtafel worden geplaatst.

    Totaalgewicht: 30 ton
    Benodigde ruimte: 16.500 x 7.100 mm

     


  • Type/Model: 3D plasma/drilling/tapping/marking
  • Stocknummer: O.16 14112
  • Kies een Categorie: [O] Plooibanken, Kantbanken, Walsmachines, Richtmachines, Lasersnij- & Brandsnijmachines, Ponsmachines & Profileerlijnen
  • Subcategorie: [O.16] Brandsnijmachines - Gasbrandsnijmachines & Plasmabrandsnijmachines
  • Merk: MicroStep

StockNr: O.16 14112

Bekijk video werkende machine

Ontvang als eerste updates in uw mailbox
Test onze nieuwe Alert service